
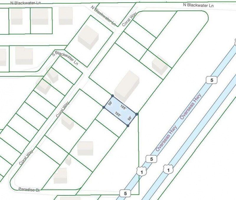
Vacant Lot in Key Largo! Welcome to your opportunity to build a beautiful home in a desirable subdivision in Key Largo. X flood zone with 120' easement provides lots of privacy. Sewer paid. This vacant lot offers a prime location for a custom-designed residence with easy access to all the amenities this tropical paradise has to offer. Discover the charm of Key Largo living with access to nearby restaurants, shopping and John Pennekamp Park for boat ramp, watersports and beach. With the growing d...Vacant Lot in Key Largo! Welcome to your opportunity to build a beautiful home in a desirable subdivision in Key Largo. X flood zone with 120' easement provides lots of privacy. Sewer paid. This vacant lot offers a prime location for a custom-designed residence with easy access to all the amenities this tropical paradise has to offer. Discover the charm of Key Largo living with access to nearby restaurants, shopping and John Pennekamp Park for boat ramp, watersports and beach. With the growing demand for homes in Key Largo, this vacant lot presents an excellent investment opportunity!
View MoreCourtesy of
Agency Name: Berkshire Hathaway HomeServices Keys Real Estate - Islamorad
Agency Phone: (305) 664-4444
Agent Name: Lisa Frins P.A.
Presented by
Agent Name: Leah Mensah
Agent Phone: 954.405.7295
Agency Title: The Keyes Company
Request Info
Send an email with a link to
105184 Overseas Highway, Key Largo, FL 33037.
Email 105184 Overseas Highway, Key Largo, FL 33037
Thank you for your inquiry! As a thank you, we have a Special Mortgage Offer for You.
We would like to provide you a free, no-obligation, home loan pre-approval review.