
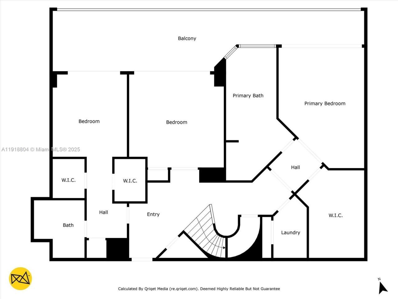
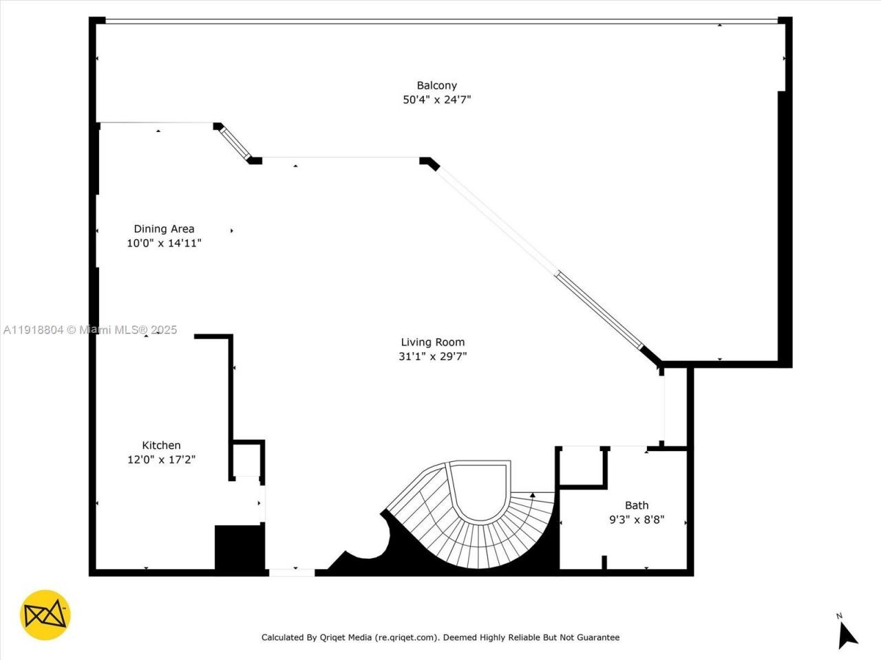
Beautiful elevated single-family home in Sunny Isles Beach! This charming residence offers just under 1,800 sq ft under AC plus an oversized 600 sq ft garage thats perfect for converting into an additional bedroom, bathroom, home office, gym, or guest suite. Built in 1992, the home features modern PVC plumbing and a well-maintained Spanish-tile roof in excellent condition. Inside, the layout is spacious and functional, ready for light renovation or modernization to suit your taste.One of the sta...Beautiful elevated single-family home in Sunny Isles Beach! This charming residence offers just under 1,800 sq ft under AC plus an oversized 600 sq ft garage thats perfect for converting into an additional bedroom, bathroom, home office, gym, or guest suite. Built in 1992, the home features modern PVC plumbing and a well-maintained Spanish-tile roof in excellent condition. Inside, the layout is spacious and functional, ready for light renovation or modernization to suit your taste.One of the standout features is the homes high elevation, noticeably higher than neighboring properties, providing exceptional peace of mind during heavy rains. The lot is beautifully landscaped with mature mango, banana, lemon, and avocado trees, creating a private backyard oasis with plenty of room for outdoor living, gardening, or a future pool.Additional features include a large multi-car driveway, excellent curb appeal, and no HOA, giving you full flexibility for parking, pets, and exterior improvements. Located in the highly desirable Golden Shores neighborhood of Sunny Isles Beach, this home is just minutes from world-class beaches, parks, top-rated schools, restaurants, and shopping. A rare opportunity to own an elevated coastal home with incredible potential in one of South Floridas most sought-after communities.
View MoreCourtesy of
Agency Name: Property Pro Partners, LLC.
Agency Phone: 786-859-2628
Agent Name: Brandon Talalaevsky
Presented by
Agent Name: Leah Mensah
Agent Phone: 954.405.7295
Agency Title: The Keyes Company
Request Info
Send an email with a link to
272 191st Ter, Sunny Isles Beach, FL 33160.
Email 272 191st Ter, Sunny Isles Beach, FL 33160
Thank you for your inquiry! As a thank you, we have a Special Mortgage Offer for You.
We would like to provide you a free, no-obligation, home loan pre-approval review.