
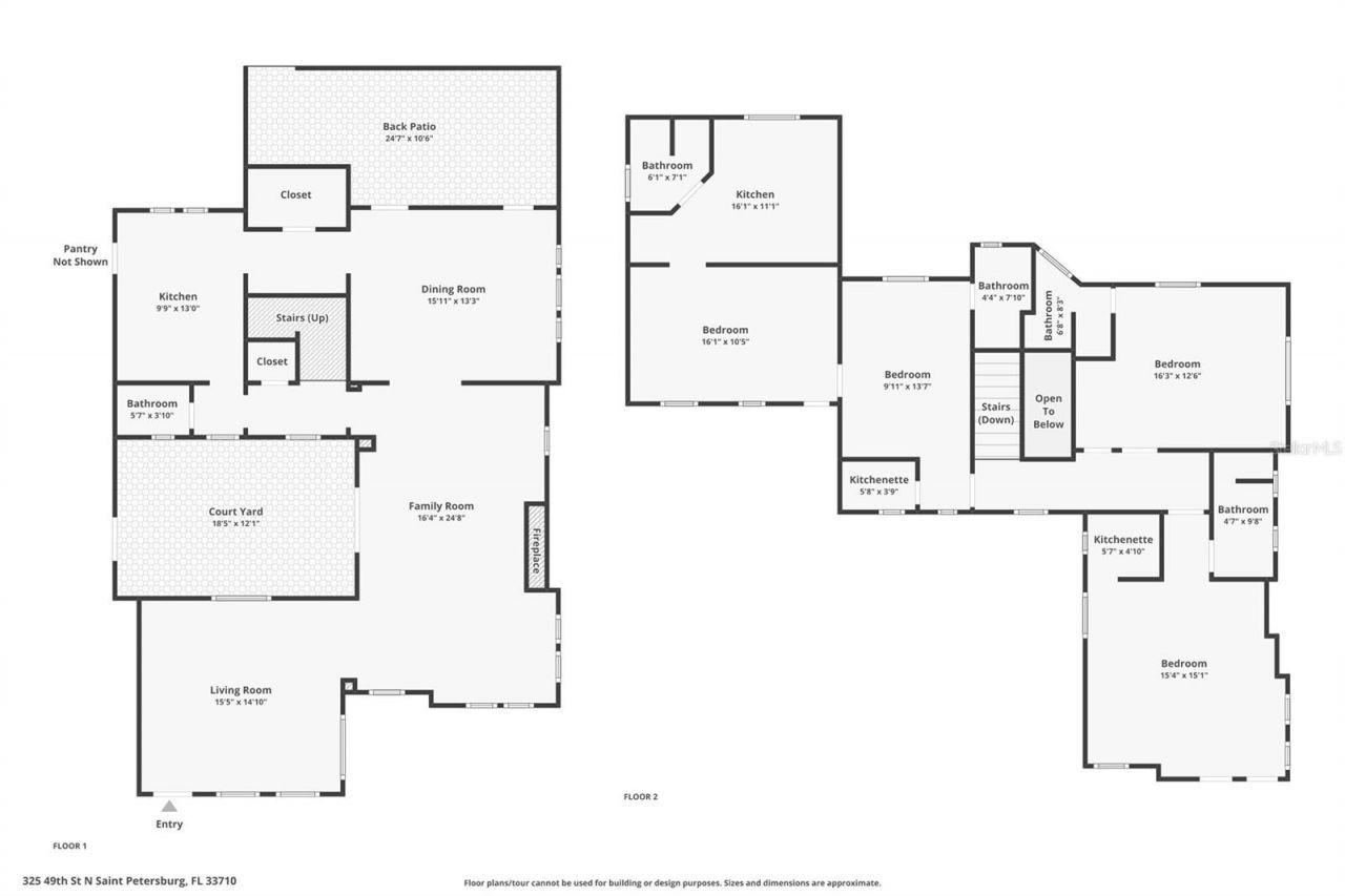
Step into a true piece of American history with this stunning 5-bedroom, 6-bath Spanish-style Mediterranean Hacienda, originally built in 1926 and once owned by baseball legend Babe Ruth (1895-1948). Nestled in beautiful St. Petersburg, Florida, this solid block home with a classic tile roof blends timeless architectural elegance with modern comforts. This rare and historic residence offers character, charm, and enduring craftsmanship that make it truly one of a kind.The hacienda-style estate sh...Step into a true piece of American history with this stunning 5-bedroom, 6-bath Spanish-style Mediterranean Hacienda, originally built in 1926 and once owned by baseball legend Babe Ruth (1895-1948). Nestled in beautiful St. Petersburg, Florida, this solid block home with a classic tile roof blends timeless architectural elegance with modern comforts. This rare and historic residence offers character, charm, and enduring craftsmanship that make it truly one of a kind.The hacienda-style estate showcases timeless design and refined details throughout. The home features five spacious bedrooms, each thoughtfully designed with private kitchenettes and decorated in elegant hacienda-style d?cor. With six well-appointed bathrooms, the property provides exceptional comfort and convenience for both residents and guests.The heart of the home is the fully equipped kitchen, featuring stainless steel appliances, granite countertops, and a breakfast island perfect for casual dining or preparing gourmet meals. Adjacent to the kitchen, a formal dining room provides a sophisticated setting for entertaining, while the inviting living room with a cozy fireplace creates a warm and welcoming gathering space. Additional living areas include a dedicated guest room and a bright Florida room designed for entertaining and seamless indoor-outdoor living.With its flexible layout, the property could potentially accommodate one or even two separate in-law suites, if desired.Outside, you will find a spacious garden and backyard ideal for relaxing or entertaining guests. The property also offers abundant parking with space for 8+ vehicles in addition to a two-car garage.Prime Location: Just minutes from the beautiful Gulf beaches, downtown attractions, renowned restaurants, and convenient access to local airports in St. Petersburg.Classic Mediterranean Architecture: Featuring signature stucco walls, arched doorways, terracotta roof tiles, and charming architectural details that reflect the elegance of the 1920s.Modern Comforts with Historic Character: While rich in history, the home offers modern conveniences for comfortable everyday living.Historical Significance: Live in a home connected to one of baseball's greatest legends, Babe Ruth, whose legendary career in Major League Baseball spanned 22 seasons from 1914 to 1935 and earned him iconic nicknames such as 'The Bambino and 'The Sultan of Swat.This Mediterranean masterpiece offers celebrity history, timeless architecture, and an unbeatable location-making it one of the most unique and memorable properties in St. Petersburg.
View MoreCourtesy of
Agency Name: ZIGGY REALTY & BUILDERS INC
Agency Contact: 727-251-2776
Agent Name: Andy Gerakaris
Presented by
Agent Name: Leah Mensah
Agent Phone: 954.405.7295
Agency Title: The Keyes Company
Request Info
Send an email with a link to
325 49th Street N, Saint Petersburg, FL 33710.
Email 325 49th Street N, Saint Petersburg, FL 33710
Thank you for your inquiry! As a thank you, we have a Special Mortgage Offer for You.
We would like to provide you a free, no-obligation, home loan pre-approval review.