
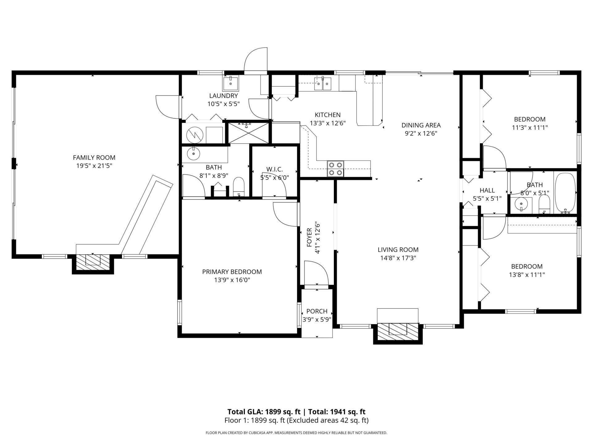
Located on a corner lot in the heart of Port St. Lucie, this frame construction pool home offers unique architectural details and incredible potential. The interior features cathedral-style cedar tongue-and-groove ceilings, two fireplaces (one in the living room and one in the converted bar/entertainment area), and a spacious kitchen perfect for future renovations and entertaining. The garage has been converted into a game room with a bar , adding flexible living space. Buyer to verify exposure ...Located on a corner lot in the heart of Port St. Lucie, this frame construction pool home offers unique architectural details and incredible potential. The interior features cathedral-style cedar tongue-and-groove ceilings, two fireplaces (one in the living room and one in the converted bar/entertainment area), and a spacious kitchen perfect for future renovations and entertaining. The garage has been converted into a game room with a bar , adding flexible living space. Buyer to verify exposure all measurements are approximate NO SITE UNSEEN OFFERS
View MoreCourtesy of
Agency Name: Pinnacle Real Estate Group
Agency Phone: 772-777-8500
Agent Name: Michele Lee Scherger
Presented by
Agent Name: Leah Mensah
Agent Phone: 954.405.7295
Agency Title: The Keyes Company
Request Info
Send an email with a link to
398 SW Ray Avenue, Port Saint Lucie, FL 34983.
Email 398 SW Ray Avenue, Port Saint Lucie, FL 34983
Thank you for your inquiry! As a thank you, we have a Special Mortgage Offer for You.
We would like to provide you a free, no-obligation, home loan pre-approval review.